-
-
-
Tổng tiền thanh toán:
-
Giải pháp thiết bị lọc bụi khu nhập nguyên liệu nhà máy bột mỳ Tiến Hưng (P1)
Wednesday,
05/10/2022
0
Nhận được yêu cầu thiết kế giải pháp và thi công hệ thống hút bụi khu nhập nguyên liệu tại Nhà máy bột mỳ Tiến Hưng, kỹ sư cơ khí Hưng Việt đã có mặt khảo sát đưa ra những giải pháp, giải những bài toán nâng cấp hệ thống với mô hình sẵn có.

Với nhiều năm sử dụng, cùng với sự phát triển của nhà máy thì bộ máy cũ đã không còn phù hợp với thời điểm hiện tại, cần được cái tạo,nâng cấp phù hợp của nhà máy.

Kỹ sư Hưng Việt khảo sát các thông số chi tiết.
Hiện trạng hệ thống cũ của nhà máy Tiến Hưng
Quá trình nhập nguyên liệu nhà máy bột mỳ Tiến Hưng
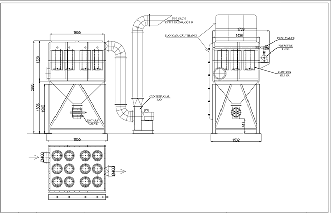
Nhận được bài toán kỹ sư Hưng Việt đã có mặt tại nhà máy khảo sát chi tiết cùng với các kỹ sư cơ điện nhà máy đưa ra giải pháp phù hợp, xây dựng mô hình bản vẽ chi tiết các hạng mục công trình tiến hàng các bước sản xuất. Sự kết hợp giữa 2 bên dù giữa quá trình lắp đặt vẫn không ảnh hưởng đến quá trình sản xuất làm việc của nhà máy, luôn đảm bảo nguồn nguyên liệu sản xuất cũng như tiến độ lắp đặt thiết bị của Hưng Việt



Bản vẽ giải pháp cho hệ thống hút bụi nhà máy bột mì Tiến Hưng
Hưng Việt - Sáng tạo làm nên giá trị !